Rekonstrukce suterénu
Vodičkova 708/35, Praha 1
autor: Ing.arch. Alena Valová, Ing.arch. Jiří Nosek
fáze: studie
rok: 2017
Až někdy půjdete Vodičkovou ulicí v Praze, nezapomeňte si pořádně prohlédnout malinký barokní dům, který se krčí vedle paláce Langhans. Autorem jeho podoby je s největší pravděpodobností slavný architekt Kilián Ignác Dientzenhofer. Byli jsme upřímně nadšení, když nás majitel tohoto objektu oslovil s prosbou o studii úprav v současnosti nevyužívaných sklepních prostor objektu.
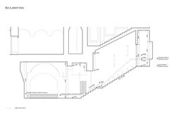
Monumentální klenutý sklep s dochovanými segmenty gotických stěn jsme v první řadě očistili od množství stávajících rozvodů vody, kanalizace a plynu. Nové trasy jsme navrhli tak, aby bylo možné prostory využít k reprezentativním účelům a vychutnat si jejich jedinečnou atmosféru.
Stávající strmé schodiště jsme nahradili schodištěm s mírnějším sklonem vhodným pro časté užívání. Podlahu jsme srovnali do jednotné úrovně a snížili. Díky tomu bylo možné do nejnižších travé situovat sociální zařízení a kuchyňku se skladem. Hlavní sál suterénu je pojat jako volný nečleněný multifunkční prostor doplněný pouze mobilním barem, projekčním plátnem a skládacím nábytkem.
Materiály a povrchy se snaží ctít kontext historického objektu. Vybílení stěn vápnem a volba cihelné dlažby do pískového lože umožňují prostoru dýchat a pracovat se zemní vlhkostí suterénu. Jako doplňující materiály jsou zvoleny ocel v kovářské černi a kartáčované masivní dubové dřevo.
Přejeme majiteli, aby našel síly na dlouhý boj s úřady a brzy nás přizval k realizaci.
![]() | ![]() | ![]() |
|---|---|---|
![]() | ![]() | ![]() |
![]() | ![]() | ![]() |
![]() | ![]() |










